- Всего новостроек: 22
- ЖК, где идут продажи: 20
- Средняя цена м2: 388 600 руб
- Средняя цена 1-комн. квартиры: 16 375 072 руб
- (цены рассчитаны по 515 активным объявлениям в данном ЖК)
*С проектной декларацией по объектам в группе компаний Основа можно ознакомиться на сайте и .
Бесплатная консультация и каталог квартир
Ответим на вопросы о жилом комплексе"UNO Старокоптевский"
Купить квартиру, цены
Планировка
S общ, от
S общ, до
Стоимость
Квартир всего
Наличие
Студии
Студии
S общ, от23 м2
S общ, до28 м2
Стоимость от 14,0 млн. ₽ до 16,5 млн. ₽
Квартир всего
Наличие квартир 6 квартир
1-комнатные
1-комнатные
S общ, от32 м2
S общ, до32 м2
Стоимость от 16,0 млн. ₽
Квартир всего 134
Наличие квартир 1 квартира
2-комнатные
2-комнатные
S общ, от60.2 м2
S общ, до60.2 м2
Стоимость от 25,0 млн. ₽
Квартир всего 125
Наличие квартир 1 квартира
Отзыв экспертов по новостройкам Рестейт
Объединенная редакция
Главный редактор онлайн-агрегатора Restate.ru
Жилой комплекс "UNO Старокоптевский" строится в Коптево, на севере Москвы. Стройка идет на месте промзоны "Коптево", что само по себе не редкость в Москве, но при этом сама промзона никуда пока не делась и остается ближайшим соседом нового ЖК - это уже несколько реже, но тоже встречается на рынке столичных новостроек. Так что оценить ЖК можно двояко - рядом обжитые старые районы с инфраструктурой, но и промышленные объекты тоже поблизости. У многих жильцов вид из окон будет не на зеленые зоны, которые, кстати, тут тоже имеются, а на промзону. Для заявленного ценника на квартиры (от 15 млн. рублей за "однушку") локация выбрана... неоднозначная.
Экология и благоустройство
ЖК находится в нежелательной близости от действующей промзоны "Коптево". Кроме складов, гаражей и мелких коммерческих предприятий, тут есть и несколько работающих промышленных объектов. Покупатели жалуются на нежилой вид локации со стороны "промки". Из достоинств локации - близость Тимирязевского парка (около 1,5 км) и развлекательного парка "Московские сезоны".
Транспорт и инфраструктура
Район Коптево старый, со сложившейся инфраструктурой. В пешеходной доступности от ЖК - школы, детские сады, поликлиники, супермаркеты и даже крупный продуктовый рынок. Недалеко от ЖК располагается выезд на Ленинградский проспект, но вся местная автомобильная ветка застывает в пробках в часы пик. Альтернативный транспорт - метро: станция МЦК "Коптево" примерно в 700 метрах от ЖК.
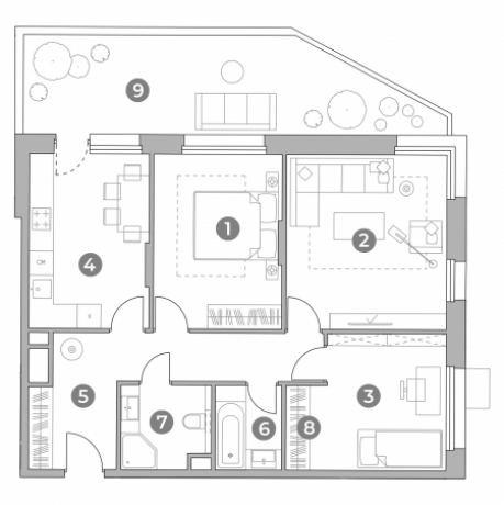
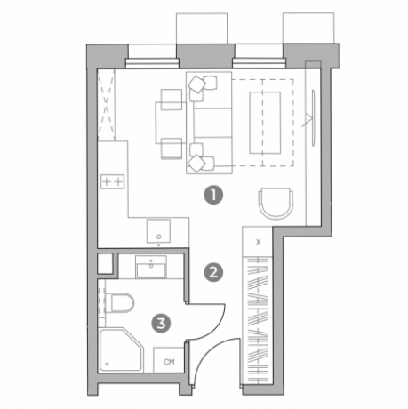
Планировки дома
| Планировка | S общая | S жилая | S кухни | Евро | Балкон/лоджия | Цена | ||
|---|---|---|---|---|---|---|---|---|
|
cтудия | 23.3 м2 | — | — | нет | — | санузел совмещенный, балкон есть | от 13 990 000 руб от 13 990 000 руб |
|
cтудия | 23 м2 | — | — | нет | — | санузел совмещенный, балкон есть | от 13 990 000 руб от 13 990 000 руб |
|
cтудия | 25.7 м2 | — | — | нет | — | санузел совмещенный, балкон есть | Уточнить цену Уточнить цену |
|
cтудия | 28.9 м2 | — | — | нет | балкон | санузел совмещенный, балкон есть | Уточнить цену Уточнить цену |
|
1-комнатная | 33.6 м2 | — | — | нет | балкон | санузел совмещенный, балкон есть | Уточнить цену Уточнить цену |
|
1-комнатная | 39.8 м2 | — | — | нет | балкон | санузел совмещенный, балкон есть | Уточнить цену Уточнить цену |
|
1-комнатная | 42 м2 | — | — | нет | — | санузел совмещенный, балкон есть | Уточнить цену Уточнить цену |
|
1-комнатная | 50.6 м2 | — | — | нет | балкон | санузел совмещенный, балкон есть | Уточнить цену Уточнить цену |
|
2-комнатная, евро | 47.2 м2 | — | — | да | балкон | санузел совмещенный, балкон есть | Уточнить цену Уточнить цену |
|
2-комнатная, евро | 41.8 м2 | — | — | да | балкон | санузел совмещенный, балкон есть | Уточнить цену Уточнить цену |
|
2-комнатная, евро | 37.7 м2 | — | — | да | — | санузел совмещенный, балкон есть | Уточнить цену Уточнить цену |
|
2-комнатная | 70.4 м2 | — | — | нет | балкон | санузел совмещенный, балкон есть | Уточнить цену Уточнить цену |
|
2-комнатная | 58.7 м2 | — | — | нет | балкон | санузел раздельный, балкон есть | Уточнить цену Уточнить цену |
|
2-комнатная | 54.9 м2 | — | — | нет | — | санузел совмещенный, балкон есть | Уточнить цену Уточнить цену |
|
2-комнатная | 49 м2 | — | — | нет | — | санузел совмещенный, балкон есть | Уточнить цену Уточнить цену |
|
2-комнатная, евро | 41.3 м2 | 12.31 м2 | 17.65 м2 | да | — | S жилая 12.31 м2, S кухни 17.65 м2, санузел совмещенный, балкон есть | Уточнить цену Уточнить цену |
|
3-комнатная | 85.3 м2 | — | — | нет | — | санузел раздельный, балкон есть | Уточнить цену Уточнить цену |
|
3-комнатная | 88.8 м2 | — | — | нет | балкон | санузел раздельный, балкон есть | Уточнить цену Уточнить цену |
|
3-комнатная, евро | 65.8 м2 | — | — | да | балкон | санузел раздельный, балкон есть | Уточнить цену Уточнить цену |
|
3-комнатная | 76.2 м2 | — | — | нет | — | санузел раздельный, балкон есть | Уточнить цену Уточнить цену |
|
3-комнатная, евро | 71.32 м2 | 30.73 м2 | 23.57 м2 | да | балкон | S жилая 30.73 м2, S кухни 23.57 м2, санузел раздельный, балкон есть | Уточнить цену Уточнить цену |
|
3-комнатная, евро | 64.8 м2 | 30.73 м2 | 23.57 м2 | да | балкон | S жилая 30.73 м2, S кухни 23.57 м2, санузел раздельный, балкон есть | Уточнить цену Уточнить цену |
|
4-комнатная, евро | 85.1 м2 | 40.2 м2 | 24.48 м2 | да | балкон | S жилая 40.2 м2, S кухни 24.48 м2, санузел раздельный, балкон есть | Уточнить цену Уточнить цену |
Подходящие планировки не найдены
Ипотечный калькулятор
Основные характеристики
- Класс: Бизнес
- Корпусов: 2
- Этажей: 12-22
- Тип дома:
- Высота потолков: 2,87 - 3
- Всего квартир: 307
- Застройщик:
- Юридическое лицо: ООО СЗ СТАРОКОПТЕВСКИЙ
- Срок сдачи:
- Отделка:
- Материал стен: Монолит-кирпич
- Свободная планировка: Нет
- Класс энергоэффективности здания: A
- Жилая площадь: 23 - 90 кв. м
- Выдача ключей: 04.09.2024
Паркинги
- Паркинг: Подземный
- Количество мест в паркинге: 96
- Гостевые места на придомовой территории: 11
Лифты
- Количество грузовых и грузопассажирских лифтов: 4
- Количество пассажирских лифтов: 1
Благоустройство двора
- Количество детских площадок: 5
Безбарьерная среда
- Наличие понижающих площадок: Есть
Индексы
- Индекс зеленой зоны: 8
- Индекс транспортной доступности: 6 / 10
- Индекс инфраструктурной обеспеченности: 9
Акции по 8 типам, скидки, рассрочки, ипотеки и просто квартиры по специальным условиям от застройщика.
Карта
ЖК UNO Старокоптевский. Москва, Коптево р-н, Старокоптевский пер, д. 4
Инфраструктура района
Документы
Ход строительства
Видео обзор
Особенности ЖК
-
Безопасность и защита для автомобиля
-
Место отдыха
-
Безопасная среда
-
Охраняемая территория, видеонаблюдение
Похожие новостройки
Объявления в новостройках КоптевоНовости
Описание ЖК УНО Старокоптевский от Osnova
Жилой комплекс UNO. Старокоптевский расположился в Северном округе Москвы, в 5 минутах ходьбы от станции МЦК «Коптево» и в 10 минутах на общественном транспорте от станции метро «Войковская». Проект возводится в уютном столичном районе, между двух огромных парков с водоемами – Головинских прудов и Академических прудов в Тимирязевском парке.
UNO. Он один такой - новый уровень городского комфорта в формате монодомов от ГК «Основа». Максимальная функциональность и безопасность, комфортность, уют и индивидуальность в деталях объединены в новом проекте монодомов UNO.
UNO. Старокоптевский – двухсекционный жилой комплекс переменной этажности (12-16-22 этажей) с авторской архитектурой, закрытой благоустроенной территорией, паркингом и собственным детским садом.
На выбор покупателей представлены квартиры с потолками до 3 метров, большими окнами и разнообразными планировочными решениями: от типовых студий до 4-комнатных квартир, часть из которых будут иметь террасы, угловые лоджии и балконы с панорамным остеклением.
Страница создана: 14.04.2021, обновленa 11.12.2025. В описании есть неточность? Расскажите об этом
Форум дольщиков и отзывы
Предложения месяца
График средних цен в новостройках в Коптево
| Тип недвижимости | Средн. цена м2 | Изменение с 26.12.2024 | Разброс цен | Дата |
|---|---|---|---|---|
| Квартиры в новостройке | 29 031 217 руб. | + 9 096 728 руб. | 9 588 690 ... 144 280 000 руб. за объект | 25.11.25 |
| 27 373 105 руб. | + 7 438 616 руб. | 9 033 300 ... 130 676 000 руб. за объект | 11.11.25 | |
| 26 774 934 руб. | + 6 840 445 руб. | 8 864 600 ... 130 150 000 руб. за объект | 28.10.25 | |
| 26 488 810 руб. | + 6 554 321 руб. | 8 657 850 ... 135 820 000 руб. за объект | 14.10.25 | |
| 26 041 537 руб. | + 6 107 048 руб. | 8 587 820 ... 134 440 000 руб. за объект | 30.09.25 | |
| 25 395 728 руб. | + 5 461 239 руб. | 8 458 040 ... 130 331 000 руб. за объект | 16.09.25 |













.jpg)





.jpg)















21 комментарий о жилом комплексе
Макс
11 декабря 2024, 16:02
Выбрали этот жилой комплекс от Основы из-за хорошей транспортной доступности. МЦК, Дмитровское шоссе — всё близко. Проблем, чтобы добраться куда-либо в городе, не возникает
Полина
29 августа 2024, 11:22
Качество квартир хорошее. Мы с мужем были готовы к большим недочетам, шли со специалистом принимать. А в итоге все неплохо. Стены ровные, пол залит хорошо, перепады в пределах нормы. Всю инженерию проверить сложно, но так вся проводка была работающая, вентиляция тоже. Тут уже время покажет. Но так мы довольны, принялись за ремонт))
Марина
27 августа 2024, 10:04
Комплекс достойный, перечислю плюсы: логистическая инфраструктура (МЦК, Ленинградка), наличие школ и дет.садов + свой сад в рамках ЖК, рядом 2 парка, тц Метрополис в пешей доступности, плюшки самого ЖК (площадки для детей и взрослых, закрытая территория). Из минусов отмечу стоимость, ну тут ты за локацию и качество платишь.